Test or certification item 测试或认证名称: UL 1653电力非金属管系Electrical nonmetallic tubing
Test or certification info 测试和认证相关内容:
UL 1653《电力非金属管系》(Electrical Nonmetallic Tubing)是北美地区电气管道系统设计、制造和安装的重要技术依据。
该标准适用于符合加拿大电气规范(CE Code)、美国国家电气规范(NEC)及墨西哥电气安装标准(NOM-001-SEDE)使用的波纹电气非金属管(ENT)和机械连接配件,同时适用于与出线盒一体的机械连接配件。标准规定产品适用于以下条件:最高连续工作温度75°C、最高环境温度50°C,在阁楼中使用时安装高度不得超过天花板托梁底部900mm,且材料额定温度最低为60°C;地下直埋仅在加拿大允许。值得注意的是,标准明确规定不适用于溶剂胶粘剂连接的配件,此类产品应参照UL 651或CSA C22.2 No. 211.2标准。
ENT管道必须采用硬质非增塑聚氯乙烯材料制造,机械连接件的材料需具备最低90°C的相对热指数。标准允许使用制造商自身生产过程中产生的清洁回收料,但明确禁止使用再生料、回收料或消费后材料,以确保材料性能一致性。尺寸精度方面,标准对各类公称尺寸管道的外径、内径及弯曲半径均有明确规定,如1/2英寸管道外径范围为21.13-21.54mm,弯曲半径为87mm。
核心检测项目
3.1 阻燃性能测试
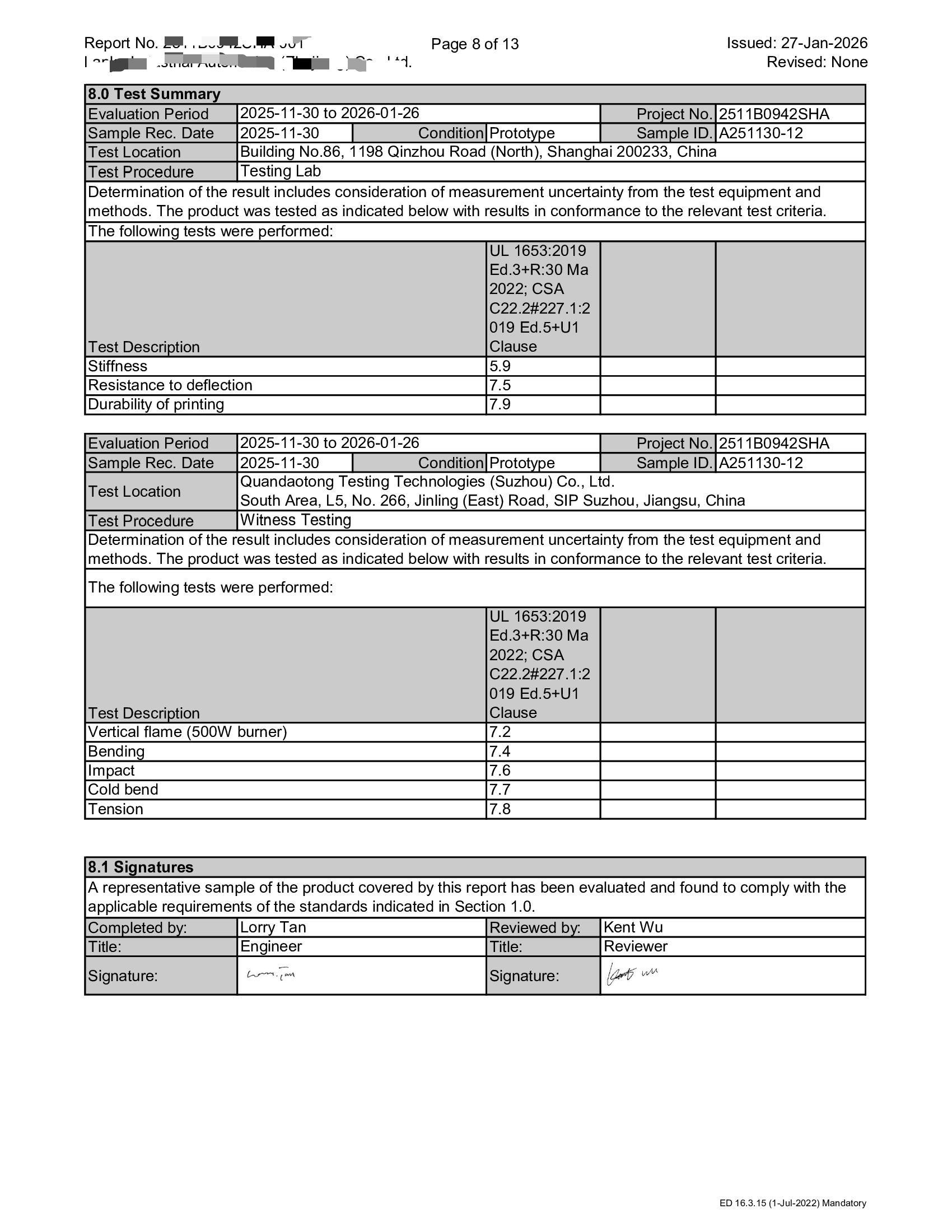
防火安全是UL 1653标准的核心关切。ENT管道必须通过500W垂直火焰测试,燃烧时间不得超过10秒,且不得有燃烧颗粒脱落。标准还设有可选的FT4电缆托架火焰测试,要求炭化长度不超过1.5米。阻燃性能的根本目的在于防止导管成为火灾传播的通道,这是保障生命财产安全的第一道防线。
3.2 机械性能测试
机械性能测试用于评估管道在安装和使用过程中的物理强度,具体包括:
抗偏转测试:在特定载荷下进行压缩测试,要求6个样品偏转不超过30%,且无褶皱或裂纹。2022年修订版明确细化了该项验收标准,提升了管道机械强度的一致性。
冲击测试:在-20°C低温条件下以2.7J冲击能量进行测试,10个样品中损坏数量不得超过2个。该测试模拟管道在低温环境下可能遭受的机械冲击。
冷弯测试:在-20°C条件下进行360°弯曲,要求样品无裂纹、碎裂或破裂。
拉伸测试:在持续1分钟张力作用下,样品不得断裂。
3.3 耐环境与电气性能测试
非金属导管在实际使用中可能暴露于潮湿、紫外线照射或化学物质环境中,标准要求导管在经过特定的紫外线老化、潮湿环境处理或接触代表性化学品后,其机械强度和电气绝缘性能不能出现显著劣化。电气性能方面,需验证导管壁的介电强度,确保其在规定电压下不会发生击穿,从而有效隔离带电导体与外界,防止电击危险。
3.4 机械连接件检测
机械连接件必须通过严格的弯曲和拉伸测试,确保在90°C高温环境下仍能保持连接可靠性。测试序列包括:90°弯曲→180°反向弯曲→90°复位弯曲→667N拉伸保持5分钟的完整验证流程。混凝土密封连接件还需通过严格的混凝土渗透测试,确保在振动混凝土环境中不会渗入骨料。
标识要求
ENT管道必须每隔不超过1.5米清晰标记制造商信息、类型“ENT”、材料“PVC”及公称尺寸等关键信息。通过FT4测试的产品需标记“FT4”,符合阁楼使用要求的需明确标注使用条件,混凝土密封连接件需标注“FOR CONCRETE ENCASEMENT”。
标准在北美三地适用时存在一定差异:地下直埋在美国和墨西哥不允许,在加拿大允许但需满足300kPa刚度要求;材料RTI要求在美加均为90°C,墨西哥不适用;阁楼安装高度三国均为不超过900mm;工厂标识要求仅美国要求多工厂标识。这些差异在检测和认证过程中需予以关注。
Photo for reference 涉及图片:

Sample report 样本报告:











